完工專案
2022-2-獅甲非營利幼兒園
設計說明:
著名兒童遊戲研究學者、也是王建築師的指導老師仙田滿教授指出,幼兒的成長源於模仿和多元遊戲環境,而非僅限於課堂學習。他強調,創造富有刺激性的遊戲環境能促進兒童的社交與學習能力。本案在設計上由仙田教授的「遊環構造」理念出發,主張透過道路遊戲空間串聯各類型的遊戲空間,形成多樣且豐富的立體空間網絡。
具體來說,設計中包括一樓平台與草地,作為兒童探索自然的空間;2樓則設有遊環步道,並在走廊旁配置小房子作為秘密基地。兩層之間還設有隧道和環型空中橋梁,增添活動的趣味性與動線的豐富性。
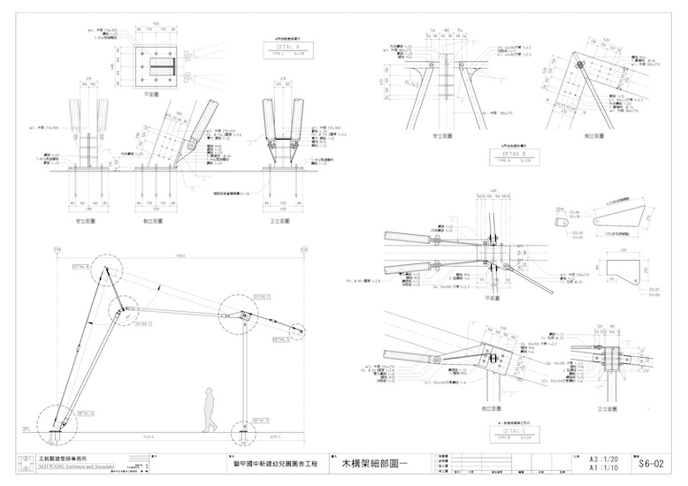
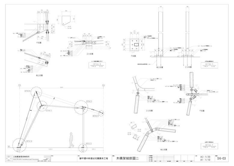
此外,建築師採用了新式木構造工法,打造具有特色的屋頂和木構屋架教室,與室外遊戲空間相互融合,呈現流暢、開放的教育環境,兼顧寓教於樂與遊戲性,體現了「遊環構造」的設計理念,為木構幼兒園創造了新的典範。
設計資料:
基地位置:高雄市前鎮區
樓層機能:地上二層幼兒園
基地面積:32,407㎡
建築面積:1,503.54㎡
樓板面積:2,675.74㎡
構造材料:一樓及基礎RC造、二樓集成材木構+鋼構、輕鋼構防火外牆、屋頂防火系統彩鋼
設計時間:2018/2~2019/10
施工時間:2020/1~2021/9
攝影:原間影像 朱逸文
著名兒童遊戲研究學者、也是王建築師的指導老師仙田滿教授指出,幼兒的成長源於模仿和多元遊戲環境,而非僅限於課堂學習。他強調,創造富有刺激性的遊戲環境能促進兒童的社交與學習能力。本案在設計上由仙田教授的「遊環構造」理念出發,主張透過道路遊戲空間串聯各類型的遊戲空間,形成多樣且豐富的立體空間網絡。
具體來說,設計中包括一樓平台與草地,作為兒童探索自然的空間;2樓則設有遊環步道,並在走廊旁配置小房子作為秘密基地。兩層之間還設有隧道和環型空中橋梁,增添活動的趣味性與動線的豐富性。
此外,建築師採用了新式木構造工法,打造具有特色的屋頂和木構屋架教室,與室外遊戲空間相互融合,呈現流暢、開放的教育環境,兼顧寓教於樂與遊戲性,體現了「遊環構造」的設計理念,為木構幼兒園創造了新的典範。
設計資料:
基地位置:高雄市前鎮區
樓層機能:地上二層幼兒園
基地面積:32,407㎡
建築面積:1,503.54㎡
樓板面積:2,675.74㎡
構造材料:一樓及基礎RC造、二樓集成材木構+鋼構、輕鋼構防火外牆、屋頂防火系統彩鋼
設計時間:2018/2~2019/10
施工時間:2020/1~2021/9
攝影:原間影像 朱逸文